Kolbendurchmesser mm
10
12
14
16
18
Volumen ccm
4
6,5
9
12
15
Einspritzdruck bar
2030
1850
1340
1030
815
Schließkraft kN
62,5
  
  
  
  
min. Plattenabstand mm
120
  
  
  
  
max. Plattenabstand mm
229
  
  
  
  
Öffnungshub mm
110
  

  

  
  
Lärmpegel
<70dBA
  
  
  
  
Auswerferkraft
5 kN
Auswerferhub
25 mm
Werkzeugträger fest B x T 247 x 172 mm
Werkzeugträger beweglich B x T 128 x 155 mm
Öltankfüllung
16 l
Gesamtanschlusswert
2,9 kW
Gewicht
340 kg
Anschluss  
400V 50Hz

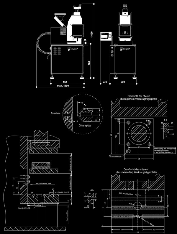
>>> Druckansicht

Stand 06/2003 | Änderungen vorbehalten | Zeichnungen nicht maßstabsgerecht



PDF-File zum download oder drucken

 

Hinweise:

  • Das Spritzaggregat kann in einer Höhe von 70 und 95 mm oberhalb der festen Werkzeughalteplatte adaptiert werden.
  • Der maximale Öffnungshub beträgt 110 mm.
  • Die minimale Werkzeugeinbauhöhe beträgt 119 mm.
  • Die Höhe des Werkzeugeinbauraumes beträgt maximal 229 mm.
  • Die Düseneitauchtiefe in den C-Rahmen beträgt max. 15mm.
  • Die Bohrung d= 35 mm in der unteren Werkzeughalteplatte ist für die Auswerferbetätigung vorgesehen.
  • Der maximale Auswerferhub beträgt 25 mm.
  • Die beiden Stifte d= 10mm H7 können zur Zentrierung des Werkzeuges verwendet werden.
  • Die bewegliche Werkzeughälfte wird mit 4 Schrauben z.B. M8 x 30 durch die bewegliche Werkzeugträgerplatte verschraubt.